Development Site Plan

3D isometric diagram showing four types of residential houses with color-coded legend and landscaping elements along a street

Click to view full site plan

Coming Soon

Stamford Le Hope, Essex

9 New Properties - Register Your Interest

Stamford Le Hope House #1 showcase with exterior brick home and interior design photos of bedrooms, kitchen, and living spaces

House Type 1

4 Bedroom, 3 Storey ×4

Floor Plans

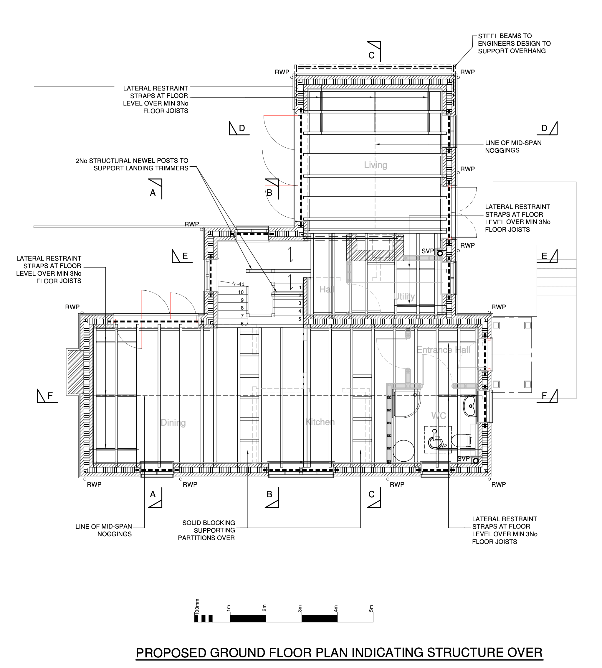
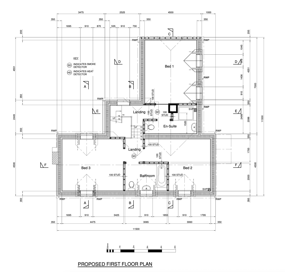
Architectural floor plans showing ground floor, first floor, and second floor layouts with room labels and dimensions
Two-floor architectural floor plan showing ground floor with living areas and kitchen, and first floor with bedrooms and bathrooms layout
Stamford Le Hope House #2 exterior and interior design showcase with brick and timber facade, bedroom, bathroom, and living room layouts

House Type 2

4 Bedroom, 2 Storey ×2

Floor Plans

Architectural floor plans showing ground floor and first floor layouts with rooms labeled including kitchen, bedrooms, and living spaces
Architectural floor plans showing ground floor, first floor, and second floor layouts with room labels and dimensions
Stamford Le Hope House #3 featuring a two-story brick and siding home exterior and interior renderings of bedrooms and living spaces

House Type 3 & 4

3 Bedroom, 2 Storey ×3

Floor Plans

Two-floor architectural floor plan showing ground floor with living areas and kitchen, and first floor with bedrooms and bathrooms layout
Architectural floor plans showing ground floor and first floor layouts with rooms labeled including kitchen, bedrooms, and living spaces
Stamford Le Hope, Essex
9 Properties

Exclusive New Development

A stunning collection of 9 new 4-bedroom detached homes, thoughtfully designed with modern families in mind. Each property features spacious living areas, contemporary finishes, and high-quality specifications throughout.

4 Bedrooms
2+ Bathrooms
Garage & Parking
Detached
Under Construction
Castle Hedingham

Castle Hedingham

Opposite the Castle, Castle Hedingham, Essex

3
Beds
2
Baths
Detached
New
Build

A stunning 3 bed detached house sympathetically designed to complement the historic castle environment.

Floor Plans & Elevation

Click on any plan to enlarge

Ground Floor Plan

Ground Floor Plan

First Floor Plan

First Floor Plan

Elevation Drawing

Elevation Drawing

Stambourne 5 bedroom detached house plan
Coming Soon
Stambourne, Essex

Stambourne

Stambourne, Essex

5
Beds
3+
Baths
Detached
New
Build

Stunning 5 bedroom detached house coming soon to the village of Stambourne. A fantastic opportunity to secure your dream home in a picturesque Essex location.

Exterior view of Little Hyde Cottage
£437,500 OIRO
NO ONWARD CHAIN

Little Hyde Cottage

Lt. Hyde Close, Gt. Yeldham, Essex

3
Beds
2
Baths
New
Build
Multi
Parking

An attractive cottage style new build with appealing boarded elevations, situated in a pleasant location in the popular village of Great Yeldham.

Property Gallery

Take a closer look at this beautiful cottage through our image gallery

Exterior front view of Little Hyde Cottage

Exterior View

Attractive cottage style with boarded elevations

Exterior view of Little Hyde Cottage
Interior view of Little Hyde Cottage
Property details of Little Hyde Cottage
Garden view of Little Hyde Cottage

Key Features

This beautiful new build cottage offers modern living with traditional charm

Cottage Style New Build

Attractive boarded elevations under pitch tiled roof with appealing red brick work to the plinth

Popular Village Location

Pleasant location in the sought-after village of Great Yeldham with excellent community amenities

Bi-fold Doors & Fireplace

Sitting room with bi-fold doors to garden and attractive red brick fireplace as focal point

Separate Study/Snug

Versatile dual-aspect room perfect for home office or cozy snug with garden views

Three Double Bedrooms

Generous sized bedrooms including principal bedroom with en-suite shower room

West Facing Garden

Attractive landscaped garden with full-width terrace perfect for afternoon and evening sunshine

Extensive Parking

Paved drive with twin five bar gates opening to extensive parking area with attractive landscaping

Underfloor Heating

Modern underfloor heating to ground floor with air source heat pump for energy efficiency

No Onward Chain

Move in quickly with no onward chain complications - perfect for first-time buyers or investors

Property Description

Discover every detail of this exceptional new build cottage

NO ONWARD CHAIN

Little Hyde Cottage is an attractive new build detached house with appealing boarded elevations under a pitch tiled roof with attractive red brick work to the plinth.

A canopy covers the panelled front door which opens to an inviting reception hall which has oak effect flooring and oak doors off to the reception rooms, and a useful linen cupboard housing the hot water cylinder.

The sitting room benefits from a triple aspect and has an appealing bay window to the front elevation and bifold doors to the rear, making for an exceptionally light and bright living space, and there is an attractive red brick fireplace which provides a focal point. A useful study/snug on the front elevation provides further versatility, which also has a dual aspect with views to the front garden and the side.

Kitchen & Ground Floor

The kitchen/breakfast room is situated to the rear of the property and has the same appealing oak effect flooring, and is fitted with a range of floor and wall mounted sage green shaker style units with marble effect work surfaces.

Features include a single bowl sink, and integral appliances to include a fridge/freezer, oven and hob, with extractor hood above and a dishwasher. Double oak doors access a useful utility cupboard with plumbing for washing machine and space for tumble dryer.

Ground Floor Bathroom

There is a spacious ground floor bathroom which has a fully panelled bath surround with shower above, a vanity unit with a rectangular sink and work surface, with storage beneath and a matching WC and oak effect flooring.

First Floor & Bedrooms

The first floor is equally appealing with a large galleried landing and there is appealing oak hand rails and spindles to the staircase.

Principal Bedroom

Situated to the southern side with front elevation window giving appealing roofline views, featuring part vaulted ceiling and well appointed ensuite shower room.

Bedroom Two

Generous size bedroom situated to the rear with a Velux window overlooking the village roofline with a part vaulted ceiling.

Bedroom Three

Further bedroom to the front with part vaulted ceiling, offering flexible use as bedroom or home office.

Outside & Gardens

The property is approached via an attractive paved drive with twin five bar gates opening to an extensive area of parking with further paving. There is attractive raised sleeper beds to the side of the property with a herbaceous border behind and appealing silver birch planting to the south and east elevation.

The property benefits from turfed gardens with close board fencing to the sides and rear and there is a stone path surrounding the property on all sides. A full width terrace to the rear takes advantage of the south west facing aspect which enables the occupants to take advantage of the afternoon and evening sunshine.

This is accessed via bifold doors from the sitting room making it perfect for family entertaining. There is further birch tree planting to the west providing a high degree of privacy.

Room Dimensions

Detailed measurements for every room in the property

Ground Floor

Reception Hall

15' 8" × 6' 2"
(4.80m × 1.90m)

Sitting Room

16' 2" × 15' 5"
(4.95m × 4.71m)

Kitchen/Breakfast

10' 4" × 10' 2"
(3.15m × 3.10m)

Study

8' 10" × 8' 2"
(2.70m × 2.50m)

Utility Room

6' 6" × 6' 2"
(2.00m × 1.90m)

Bathroom

7' 8" × 5' 10"
(2.36m × 1.80m)

First Floor

Landing

Galleried
Large & spacious

Principal Bedroom

12' 9" × 12' 1"
(3.91m × 3.70m)

Ensuite

12' 9" × 2' 11"
(3.91m × 0.90m)

Bedroom Two

13' 11" × 10' 2"
(4.25m × 3.10m)

Bedroom Three

11' 11" × 9' 8"
(3.65m × 2.95m)

Additional Information

Heating & Energy

The property benefits from underfloor heating to the ground floor and radiators to the first floor which are fed by an air source heat pump.

Location Reference

What3Words: applies.snowboard.plastic

Interested in This Property?

Don't miss out on this exceptional new build cottage. Contact us today to arrange a viewing or get more information.

Request Information

Property Summary

Price: £437,500 OIRO
Property Type: New Build Detached House
Bedrooms: 3 Double Bedrooms
Bathrooms: 2 (1 En-suite)
Chain Status: NO ONWARD CHAIN
Heating: Underfloor + Air Source Heat Pump
View Full Details on Rightmove

Need to Speak to Someone?

Our experienced property team is here to help with viewings, valuations, and any questions.